G-House Skiathos
Preview only — see all hotel photos
See all 52 photos
Arată hotelul pe hartă
G-House Skiathos
Situată la câțiva pași de The Blue House Art Gallery, vila G-House Skiathos cu 1 dormitoare oferă acces rapid la numeroase repere ale orașului din apropiere.
Oaspeții pot ajunge în centrul orașului Skiathos în 5 minute de mers pe jos, iar Agios Nikolaos Church and Clock Tower se află la doar 5 minute de mers pe jos de această vilă cu 1 băi. Tzaneria beach se află la 3.7 km de această vilă din Skiathos, iar Diamandis beach se află la 4.7 km distanță. Vila G-House Skiathos se află la 10 minute cu mașina de Xanemos Beach.
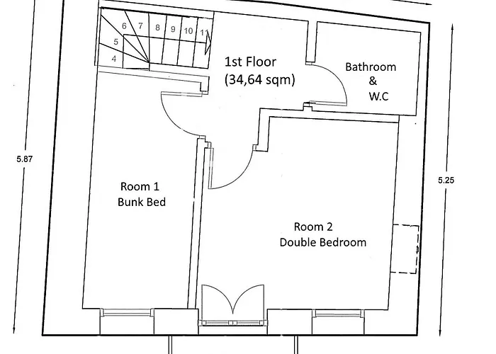
De la această cazare vă puteți bucura de priveliștea la oraș. Vila G-House Skiathos are o baie cu un duș walk-in și o toaletă separată. Un uscător de păr și prosoape de baie sunt incluse pentru a spori confortul dumneavoastră.
Oaspeții sunt bineveniți să își pregătească mesele în o bucătărie complet utilată sau să ia masa la o zonă de luat masa. Bucătăria oferă, de asemenea, un ceainic electric, un frigider și ustensile de bucătărie. Bourtzi, care servește o gamă largă de mese, se află la doar 50 de metri distanță. De asemenea, această proprietate din Skiathos este situat aproape de stația de autobuz 0 Turminus.
Facilități
Caracteristici principale
- Wi-Fi
- Check-in/-out rapid
- Activități sportive
- Aer condiționat
- Nu sunt permise animale de companie
Facilități
- Fumatul interzis în incintă
- Wi-Fi
- Express check-in/-out
- Nu sunt permise animale de companie
- Securitate
- ATM/Bancomat
- Frizerie
- Detectoare de fum
- Stingătoare de incendiu
- Acces cu cheie
- Fierbător electric
- Vase/Ustensile de bucătărie
- Divertisment live
- Drumeții
- Magazine/Servicii comerciale
- Aer condiționat
- Zona de relaxare
- Facilități de ceai și cafea
- Masă
- Maşină de spălat
- Articole de toaletă gratuite
- TV cu ecran plat
Politica
Hartă
Atracții locale
Atracții
- Kivo Art Gallery (144 km)
- Skiathitiko Spiti (236 km)
- Achladies beach (2808 km)
- Monastery of Agios Charalambos (165 km)
- Skiathos Castle (2.1 km)
- Agios Nikolaos Church and Clock Tower (127 km)
- Paralia Megali Ammos (828 km)
- Panagia Eikonistria Monastery (713 km)
- Skiathos Donkey Club (717 km)
- Musical Instruments of the World Museum (260 km)
Recenzii
Recenzii 100% verificate